WilliamHill·威廉英国(中文)官方网站-Master Website
首页
机构设置
职能简介
处领导班子
科室职责
职员组成
工作动态
william英国中文官网
部门规章
政策法规
通知公告
部门通知
招标公告
中标公示
党建工作
党建动态
相关文件
学习园地
党建知识
基建知识
办事指南
项目立项
项目预算招标及合同审核
过程造价管控表格
竣工验收表格
重点项目
已完工项目
在建工程
拟建工程
校园规划
校园规划史
海甸校区规划
儋州校区规划
观澜湖校区规划
三亚研究院
“十四五”规划
成绩清单
当前位置:
首页
>>
工作动态
>> 正文
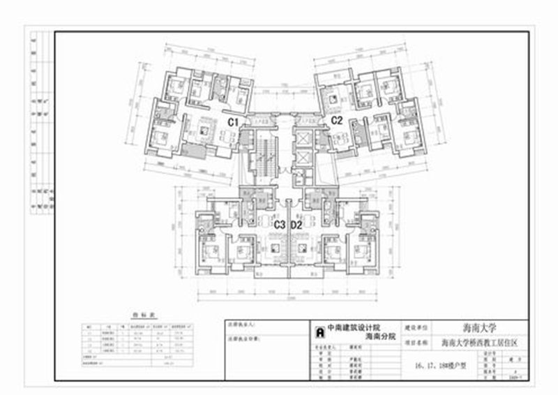
桥西校区户型方案
2009年08月19日 10:50 jijian 点击:
BC户型
BD户型(2梯4户)
ccdd户型(2梯4户)
基 建 处:0898-66279012
联系地址:william威廉英国官网基建处
基建处邮箱:hdjjc@hainanu.edu.cn
工程管理科:0898-66279015
计划设计科:0898-66192019
综 合 科:0898-66251693
造价管理科:0898-66155309
Copyright © 版权所有
WilliamHill·威廉英国(中文)官方网站-Master Website