william威廉英国官网桥西教工居住小区户型方案公示
2008年10月08日 11:15 wanghua 点击:
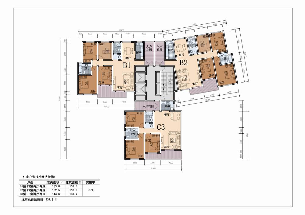
根据学校要求,桥西小区先期建设110m2、130 m2、150 m2三种户型,综合考虑单体建筑与小区整体环境的协调性,设计单位提出了甲、乙、丙三种不同户型的组合方式各两套方案, 现对上述户型的两种方案予以公示,望提出宝贵意见并填写《户型方案选择表》,海甸、城西校区教职工请将《户型方案选择表》送至基建处,儋州校区送至儋州校区管委会汇总后送交基建处,公示日期为2008年10月8日-10月15日。
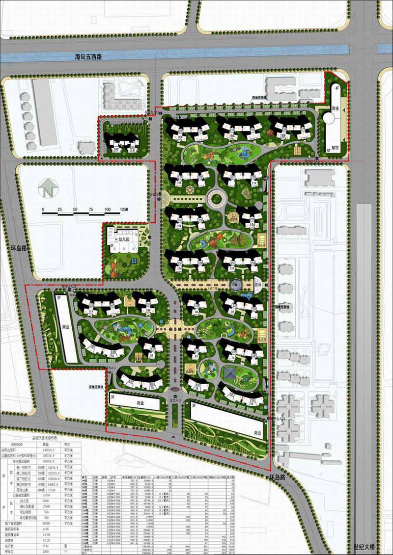
总平面图

组合平面甲(方案一)
| 
组合平面甲(方案二)
|

| 
组合平面乙(方案二)
|

组合平面丙(方案一)
|

组合平面丙(方案二)
|
户型选择表
下载 户型选择表